Wiring Diagrams

Workshop Manual Wiring Diagrams

Key to Wiring Diagrams

Use this key to identify components on all wiring diagrams below. Click any image to view full size.


MG Midget Key to Wiring Diagrams


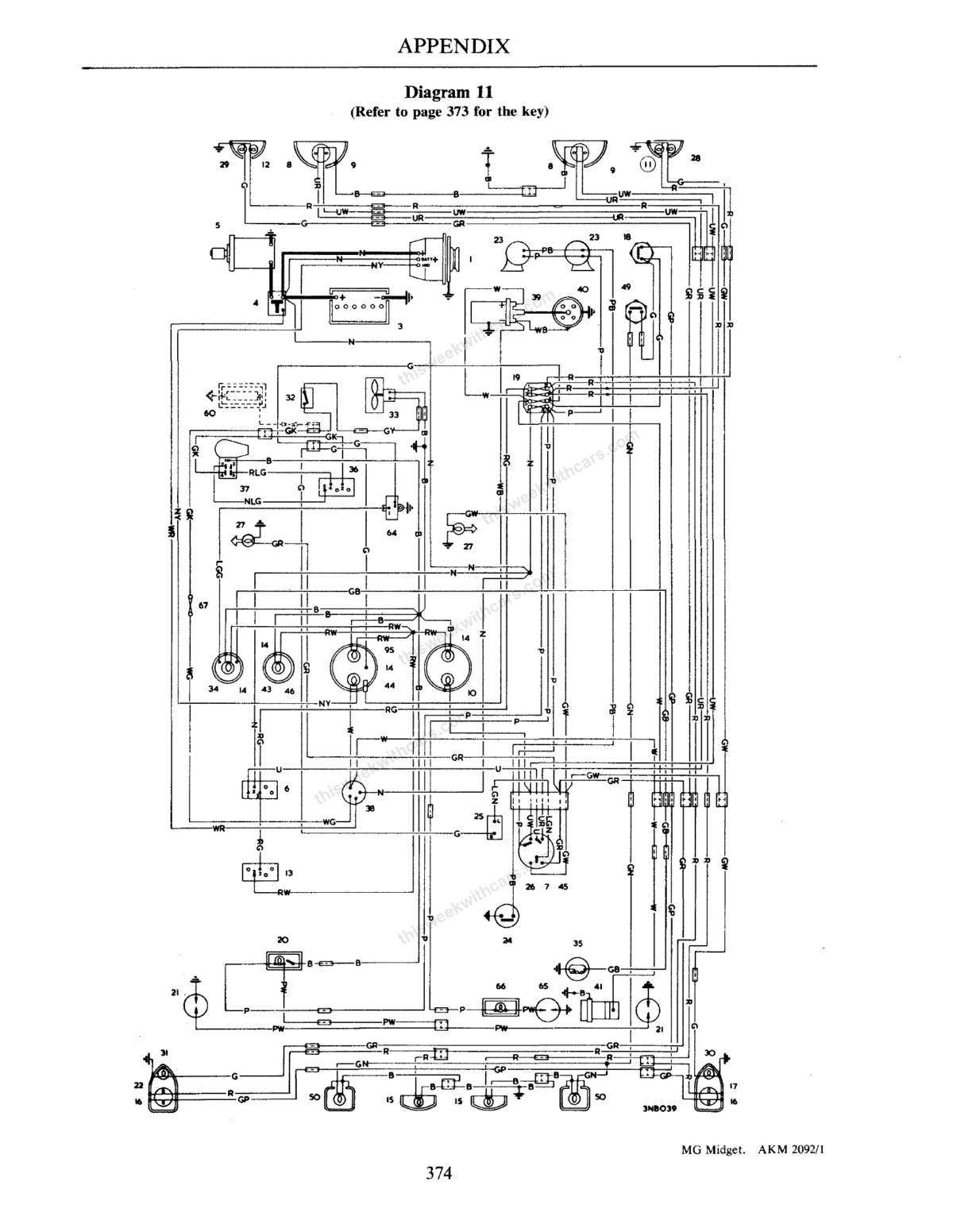
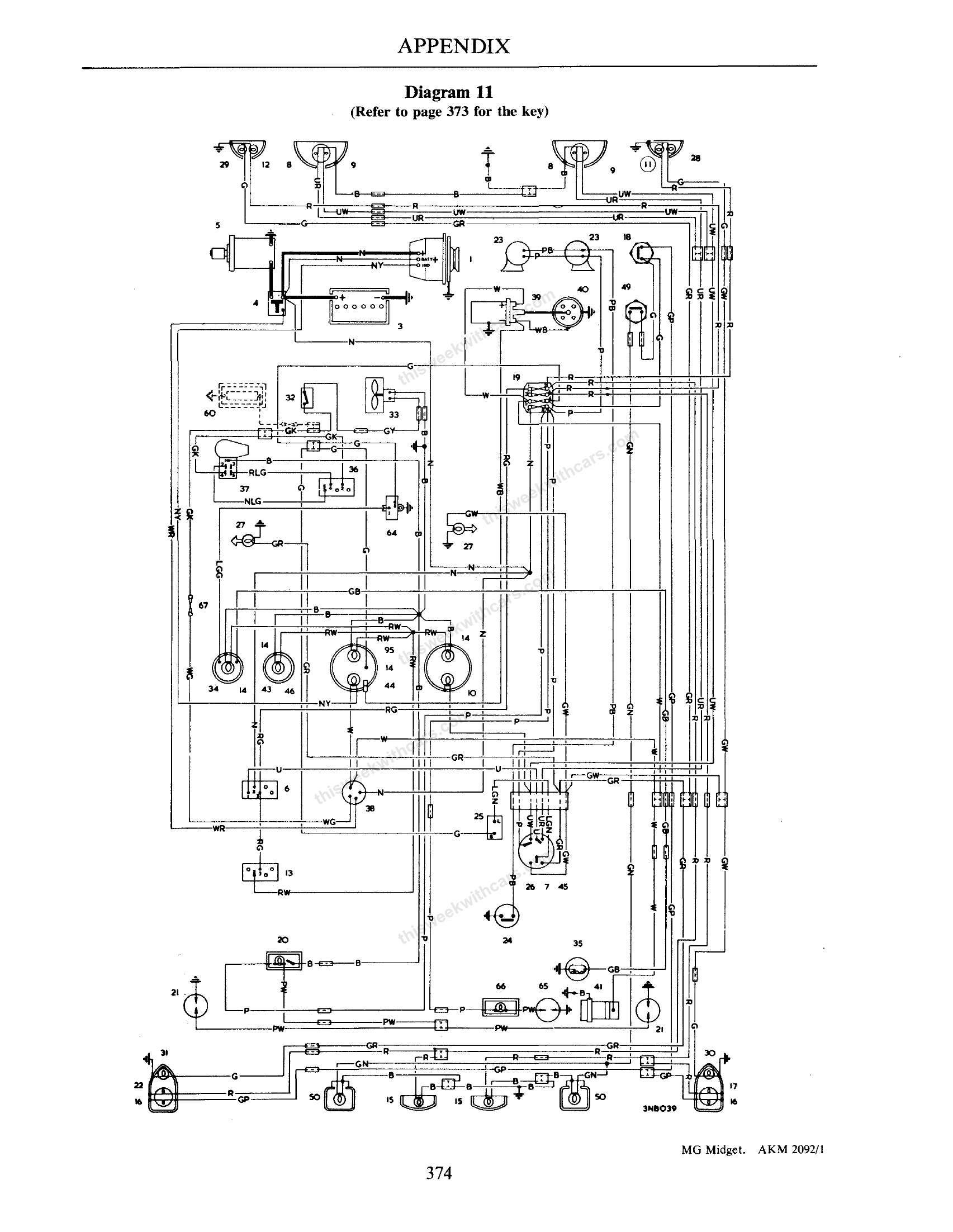
Diagram 11


MG Midget Wiring Diagram 11


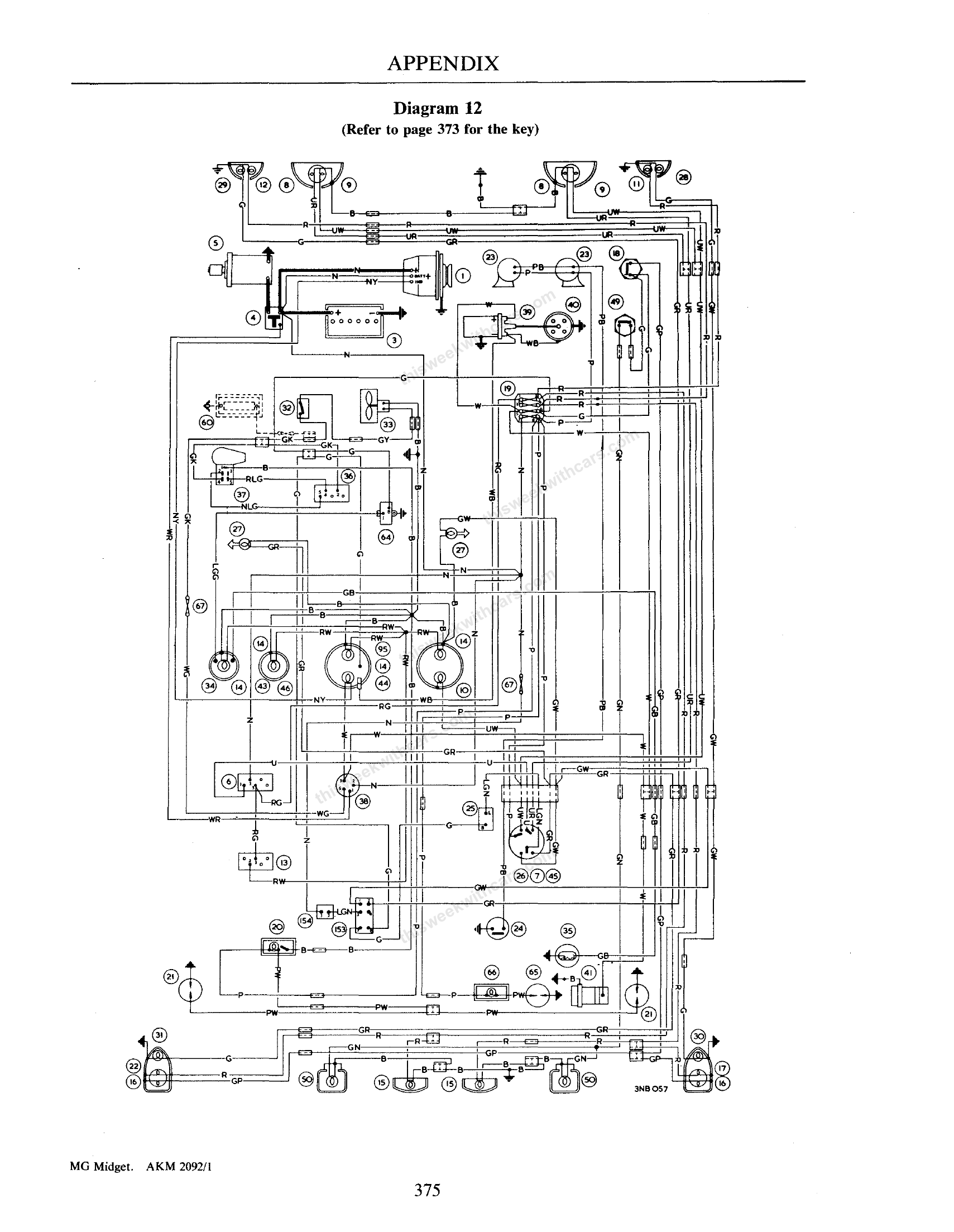
Diagram 12


MG Midget Wiring Diagram 12


Diagram 13


MG Midget Wiring Diagram 13


Diagram 14


MG Midget Wiring Diagram 14

YouTubeFacebookInstagramTikTok
© 2026 This Week With Cars